En Venta Residencia unifamiliar 4 Habitaciones 5273Pies2 en WINDERMERE - MLS O6377244

US$ 3,500,000

10577 DOWN LAKEVIEW CIRCLE WINDERMERE

FL, 34786 - O6377244

Estado:Activa






Solicita más información
Helena Realtor La Paisita

Helena Realtor La Paisita

+1 352 809 0857

helenagrealestate@gmail.com

Florida Realty Investment

Observaciones

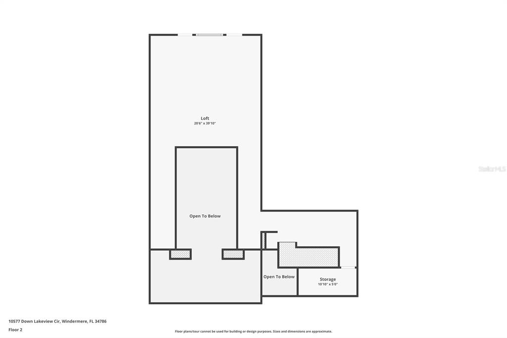
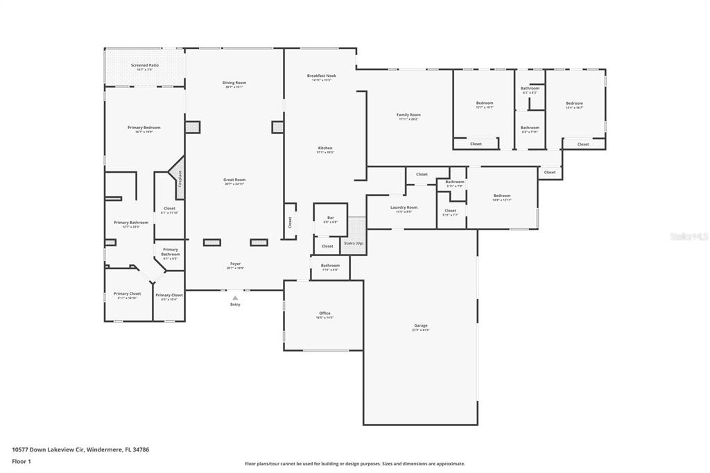
Experience true lakefront living on the famed Butler Chain of Lakes. This exceptional custom home offers 137 feet of pristine shoreline and sits on nearly one acre of high, dry land with sweeping panoramic water views and nightly Disney fireworks. Arrive via a circular paved drive framed by mature oaks and step onto the covered porch through an impressive 8 inch solid cedar entry door with artisan leaded glass. Inside, the great room makes an immediate statement with soaring 23’ cathedral ceilings and a striking Tennessee river rock fireplace. Entertain in the showstopping formal dining room, where oversized picture windows perfectly frame the lake. Designed for everyday comfort, the majority of the living space including all bedrooms is located on the main level. The chef’s kitchen is fully equipped with solid wood cabinetry, granite countertops, Sub-Zero refrigerator, Thermador gas cooktop with exhaust, Bosch double ovens, wet bar, walk-in pantry, and a sunlit breakfast area with spectacular water views. The spacious primary suite is a private retreat with its own screened lanai and a spa-inspired bath featuring a shower, jetted tub, dual vanities, and three walk-in closets. Generous secondary bedrooms offer ample closet space and well appointed baths, including a steam shower. Outdoors is where this home truly shines. Enjoy mature landscaping and colorful gardens, plus a motorized screened lanai with a chef-worthy summer kitchen pizza oven, prep area, grill, refrigerator, and TV alongside the pool, heated spa, and gas firepit. The desirable southern exposure delivers refreshing lake breezes and comfortable outdoor living without harsh afternoon sun. The custom floor plan maximizes lake views throughout, and the partially enclosed dock is a rare find grandfathered in, with a boat lift and side jet-ski lift. Additional highlights include newer doors and windows and a tile roof. The Lakes neighborhood also offers a community boat ramp and tennis courts. Enjoy Windermere living on the Butler Chain without the traffic, just minutes from major roads, top schools, shopping, and dining. This rare, well-built lakefront home is ready to welcome you. Be sure to explore the virtual tours.

Comodidades

Tennis Court(s)

Built-in Features

Cathedral Ceiling(s)

Ceiling Fan(s)

Crown Molding

Eating Space In Kitchen

High Ceilings

Primary Bedroom Main Floor

Solid Wood Cabinets

Split Bedroom

Stone Counters

Thermostat

Vaulted Ceiling(s)

Walk-In Closet(s)

Wet Bar

Publicación cortesía de THE SIMON SIMAAN GROUP

Información de listado My Florida Regional MLS DBA Stellar MLS . Toda la información contenida en esta publicación se considera confiable pero no está garantizada y debe ser verificada de forma independiente mediante inspección personal por parte de profesionales apropiados. Los listados mostrados en este sitio web pueden estar sujetos a venta previa o eliminación de la venta. La disponibilidad de cualquier listado siempre debe verificarse de forma independiente. La información del listado se proporciona para el uso personal y no comercial del consumidor únicamente para identificar propiedades potenciales para una posible compra. Cualquier otro uso está estrictamente prohibido y puede violar las leyes federales y estatales pertinentes. Esta página y el propietario de este dominio no son responsables de las imágenes proporcionadas por My Florida Regional MLS DBA Stellar MLS . Las imágenes mostradas se proporcionan y descargan automáticamente desde la base de datos MLS de la asociación. My Florida Regional MLS DBA Stellar MLS y fueron publicados en la MLS por un tercero. Si necesita más información sobre las imágenes del listado, su origen y permiso de uso, comuníquese con My Florida Regional MLS DBA Stellar MLS Datos actualizados por última vez el Thursday 23rd of April 2026 12:34:43 PM

También podría gustarte

Equal Housing

miami realtors

Mls black

floridarealtors

Orlando Regional

NAR logo

Stellar MLS Logo

DBPR Logo