En Venta 1/2 dúplex 2 Habitaciones 1259Pies2 en ALTAMONTE SPRINGS - MLS O6374706

US$ 265,000

510 BEECHWOOD AVENUE ALTAMONTE SPRINGS

FL, 32714 - O6374706

Estado:Activa






Solicita más información
Helena Realtor La Paisita

Helena Realtor La Paisita

+1 352 809 0857

helenagrealestate@gmail.com

Florida Realty Investment

Observaciones

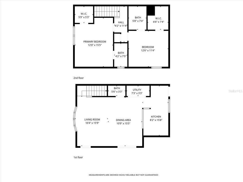
Exquisite Residence in the Heart of Altamonte Springs, Please visit our 3D TOUR New roof (2024), very low HOA only $55 per month. New paint. Welcome to this beautiful Half Duplex, 2-Master bedroom, 2.5-bathroom residence located in the highly desirable Oakland Village community. This move-in-ready home offers a perfect balance of modern functionality and refined comfort, ideal for today’s lifestyle. The interior showcases a bright open-concept floor plan complemented by durable tile flooring, plush carpeting, and a contemporary neutral color palette. Spacious living and dining areas flow seamlessly into a fully fenced backyard, creating a private retreat ideal for outdoor entertaining and relaxation. Upgraded plumbing, High-efficiency LED lighting, Just a few blocks away, Westmonte Park offers an exceptional array of recreational amenities, including: Junior Olympic-sized swimming pool with splash areas Lighted tennis, basketball, and pickleball courts Multi-purpose athletic fields and playgrounds Direct access to the Seminole Wekiva Trail Additional nearby attractions include Sanlando Park, Altamonte Mall, Cranes Roost Lake, Major hospitals and medical facilities and a variety of dining, shopping, and entertainment options. The property is also zoned for top-rated Seminole County schools. Conveniently located near SR-436, I-4, and SR-414 Whether you are a first-time homebuyer or searching for your forever home, this exceptional property offers comfort, convenience, and value in one of Central Florida’s most sought-after locations. Schedule your private showing today and experience all this home has to offer.

Comodidades

Living Room/Dining Room Combo

PrimaryBedroom Upstairs

Publicación cortesía de LA ROSA REALTY CW PROPERTIES L

Información de listado My Florida Regional MLS DBA Stellar MLS . Toda la información contenida en esta publicación se considera confiable pero no está garantizada y debe ser verificada de forma independiente mediante inspección personal por parte de profesionales apropiados. Los listados mostrados en este sitio web pueden estar sujetos a venta previa o eliminación de la venta. La disponibilidad de cualquier listado siempre debe verificarse de forma independiente. La información del listado se proporciona para el uso personal y no comercial del consumidor únicamente para identificar propiedades potenciales para una posible compra. Cualquier otro uso está estrictamente prohibido y puede violar las leyes federales y estatales pertinentes. Esta página y el propietario de este dominio no son responsables de las imágenes proporcionadas por My Florida Regional MLS DBA Stellar MLS . Las imágenes mostradas se proporcionan y descargan automáticamente desde la base de datos MLS de la asociación. My Florida Regional MLS DBA Stellar MLS y fueron publicados en la MLS por un tercero. Si necesita más información sobre las imágenes del listado, su origen y permiso de uso, comuníquese con My Florida Regional MLS DBA Stellar MLS Datos actualizados por última vez el Wednesday 22nd of April 2026 07:21:26 AM

Equal Housing

miami realtors

Mls black

floridarealtors

Orlando Regional

NAR logo

Stellar MLS Logo

DBPR Logo