En Venta Residencia unifamiliar 4 Habitaciones 2618Pies2 en WINDERMERE - MLS G5099846

US$ 1,200,000

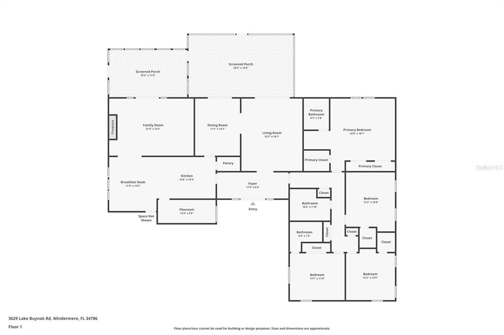
3629 LAKE BUYNAK ROAD WINDERMERE

FL, 34786 - G5099846

Estado:Activa






Solicita más información
Helena Realtor La Paisita

Helena Realtor La Paisita

+1 352 809 0857

helenagrealestate@gmail.com

Florida Realty Investment

Observaciones

Back on market—buyer withdrew for personal reasons, not due to any home-related issues. Set on 1.3 acres in the Lake Buynak Estate community, this 4-bedroom, 3.5-bath home presents an outstanding opportunity for investors, builders, or buyers wanting space and a Windermere-area address with NO HOA. Offering over 2,600 square feet, two ensuite bedrooms, a split layout, multiple screened porches, and a wood-burning fireplace, the home provides a solid framework for renovation, rental use, multigenerational living, or a future custom build. Upgrades include energy-efficient double-paned windows and a dual septic system with an expanded drain field, enhancing functionality and long-term value. The expansive 1.3-acre lot allows for substantial expansion, an ADU, or complete redevelopment in an area surrounded by high-end homes near Lake Butler. With optional HOA membership and no Windermere city restrictions, the property offers freedom that is rarely available in this ZIP code. Located minutes from Disney, Universal, shopping, dining, and major roadways, it combines convenience with the space and privacy acreage buyers crave. Owner financing may be considered. Explore the potential this unique property provides and imagine the possibilities.

Comodidades

Ceiling Fan(s)

Eating Space In Kitchen

Split Bedroom

Walk-In Closet(s)

Publicación cortesía de KELLER WILLIAMS ELITE PARTNERS III REALTY

Información de listado My Florida Regional MLS DBA Stellar MLS . Toda la información contenida en esta publicación se considera confiable pero no está garantizada y debe ser verificada de forma independiente mediante inspección personal por parte de profesionales apropiados. Los listados mostrados en este sitio web pueden estar sujetos a venta previa o eliminación de la venta. La disponibilidad de cualquier listado siempre debe verificarse de forma independiente. La información del listado se proporciona para el uso personal y no comercial del consumidor únicamente para identificar propiedades potenciales para una posible compra. Cualquier otro uso está estrictamente prohibido y puede violar las leyes federales y estatales pertinentes. Esta página y el propietario de este dominio no son responsables de las imágenes proporcionadas por My Florida Regional MLS DBA Stellar MLS . Las imágenes mostradas se proporcionan y descargan automáticamente desde la base de datos MLS de la asociación. My Florida Regional MLS DBA Stellar MLS y fueron publicados en la MLS por un tercero. Si necesita más información sobre las imágenes del listado, su origen y permiso de uso, comuníquese con My Florida Regional MLS DBA Stellar MLS Datos actualizados por última vez el Tuesday 21st of April 2026 10:15:33 AM

También podría gustarte

Equal Housing

miami realtors

Mls black

floridarealtors

Orlando Regional

NAR logo

Stellar MLS Logo

DBPR Logo