En Venta Casa adosada 2 Habitaciones 1002Pies2 en CASSELBERRY - MLS O6396123

US$ 274,000

260 N POST WAY CASSELBERRY

FL, 32707 - O6396123

Estado:Activa






Solicita más información
Helena Realtor La Paisita

Helena Realtor La Paisita

+1 352 809 0857

helenagrealestate@gmail.com

Florida Realty Investment

Observaciones

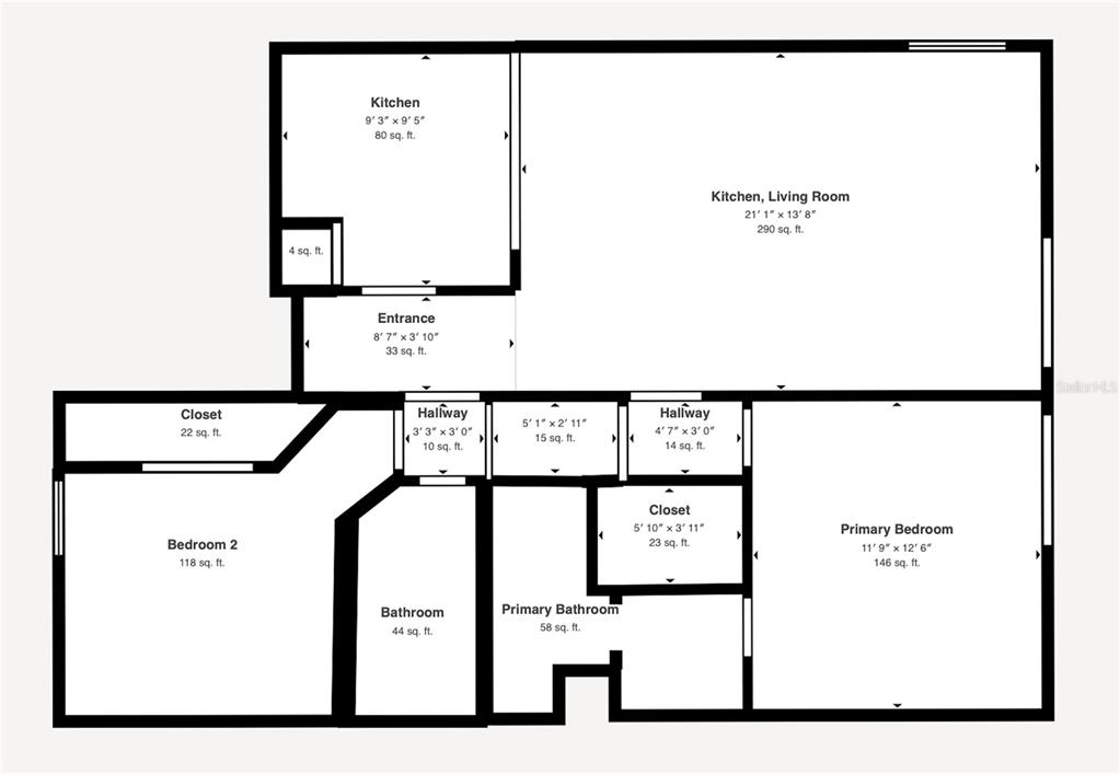
Beautiful end-unit 2BR/2BA townhome in Deer Run (Casselberry). Completely remodeled with high-end finishes, open-concept living, modern kitchen, new baths and flooring, and community pool — move-in ready. Listed at appraised value; appraisal available for review. 4-point inspection, WDO, and wind mitigation reports also provided.

Comodidades

Pool

Tennis Court(s)

Ceiling Fan(s)

Publicación cortesía de NEXTDWELL

Información de listado My Florida Regional MLS DBA Stellar MLS . Toda la información contenida en esta publicación se considera confiable pero no está garantizada y debe ser verificada de forma independiente mediante inspección personal por parte de profesionales apropiados. Los listados mostrados en este sitio web pueden estar sujetos a venta previa o eliminación de la venta. La disponibilidad de cualquier listado siempre debe verificarse de forma independiente. La información del listado se proporciona para el uso personal y no comercial del consumidor únicamente para identificar propiedades potenciales para una posible compra. Cualquier otro uso está estrictamente prohibido y puede violar las leyes federales y estatales pertinentes. Esta página y el propietario de este dominio no son responsables de las imágenes proporcionadas por My Florida Regional MLS DBA Stellar MLS . Las imágenes mostradas se proporcionan y descargan automáticamente desde la base de datos MLS de la asociación. My Florida Regional MLS DBA Stellar MLS y fueron publicados en la MLS por un tercero. Si necesita más información sobre las imágenes del listado, su origen y permiso de uso, comuníquese con My Florida Regional MLS DBA Stellar MLS Datos actualizados por última vez el Wednesday 22nd of April 2026 04:10:46 PM

También podría gustarte

Equal Housing

miami realtors

Mls black

floridarealtors

Orlando Regional

NAR logo

Stellar MLS Logo

DBPR Logo